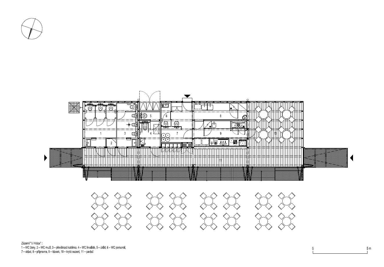
„Jablonecké moře“ má novou tvář: architekti vytvořili pavilony, které splynou s krajinou
„Jablonecké moře“ má novou tvář: architekti vytvořili pavilony, které splynou s krajinou. Zdroj: Prokš-Přikryl architekti
Sdílet na Facebooku Sdílet na Pinterestu
17 / 21
REKLAMA