Snížení účtů za energie o pětasedmdesát procent. I tohle umí dobrá architektura
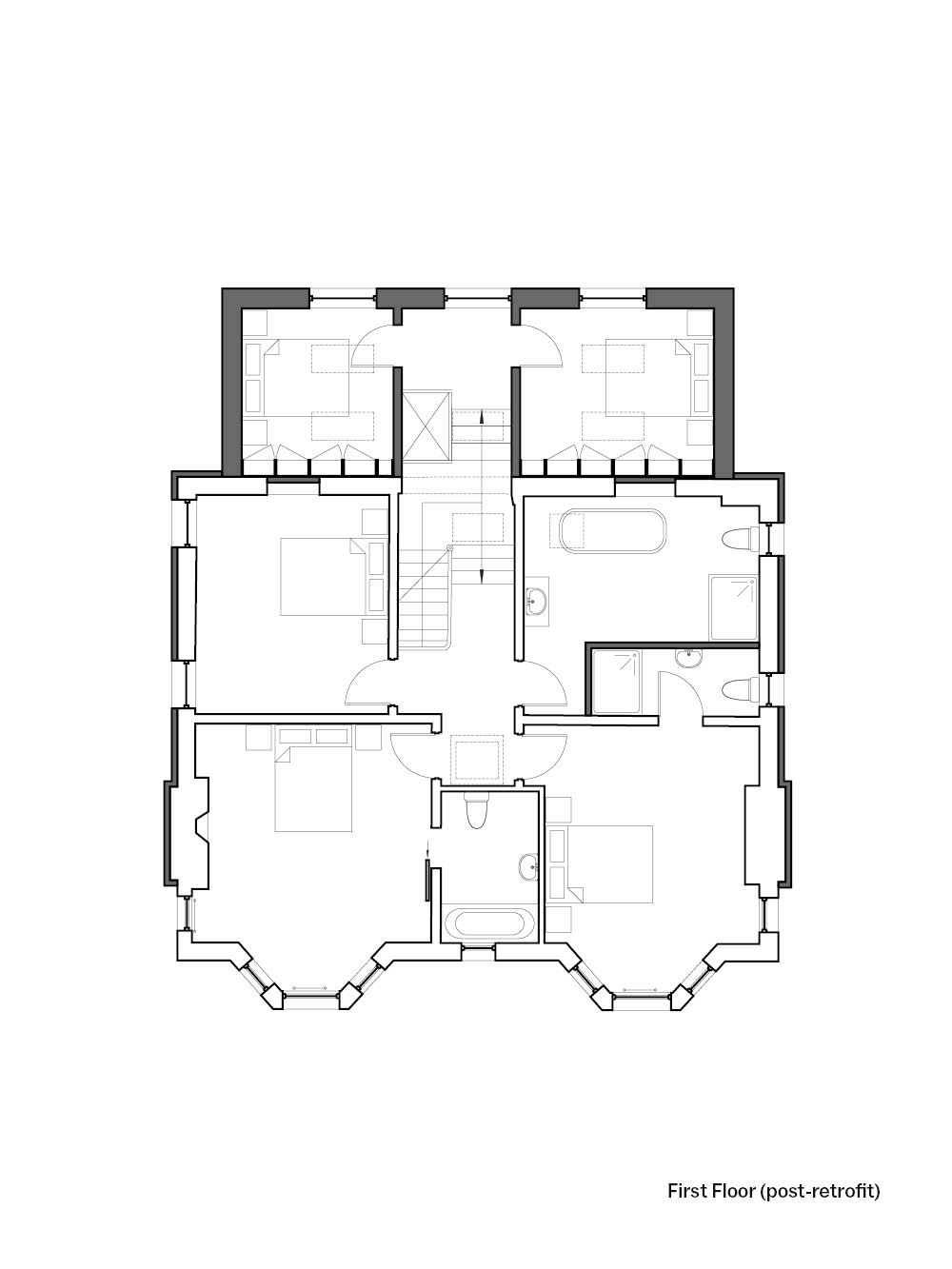
Snížení účtů za energie o pětasedmdesát procent. I tohle umí dobrá architektura. Zdroj: Studio Bark
Sdílet na Facebooku Sdílet na Pinterestu
45 / 48
REKLAMA