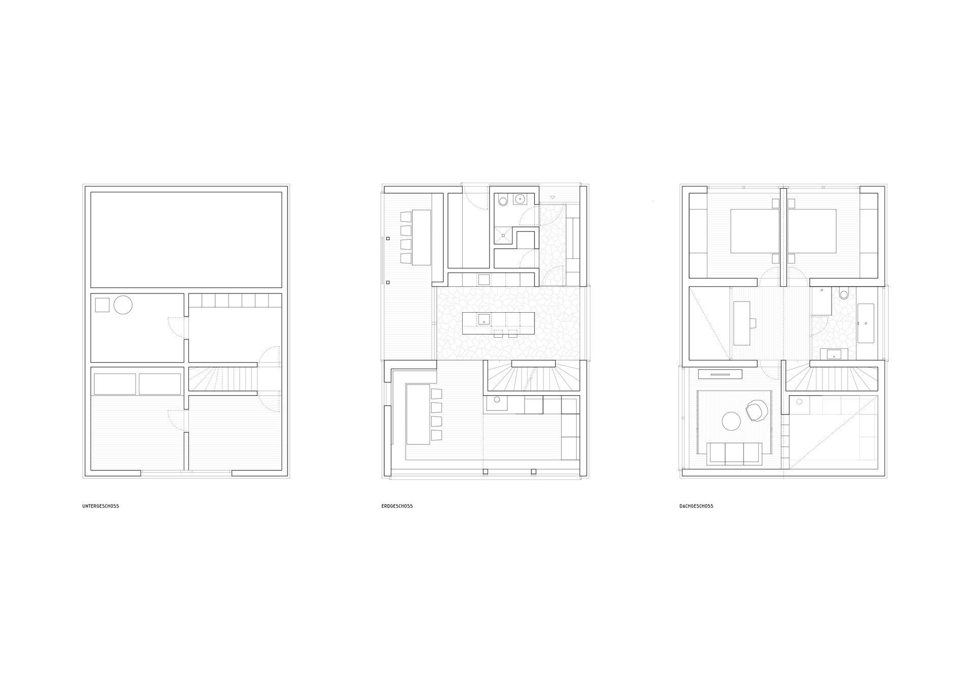
Dva domy, žádné dilema. Architekti spojili město a hory
Rakouský dům u Tschengla překvapuje: Architekti spojili město a hory. Zdroj: Innauer-Matt Architekten
Sdílet na Facebooku Sdílet na Pinterestu
16 / 18
REKLAMA