Z nevýhody výhoda: Domy ve svahu jsou příležitostí. Terasový dům má luxusní výhledy
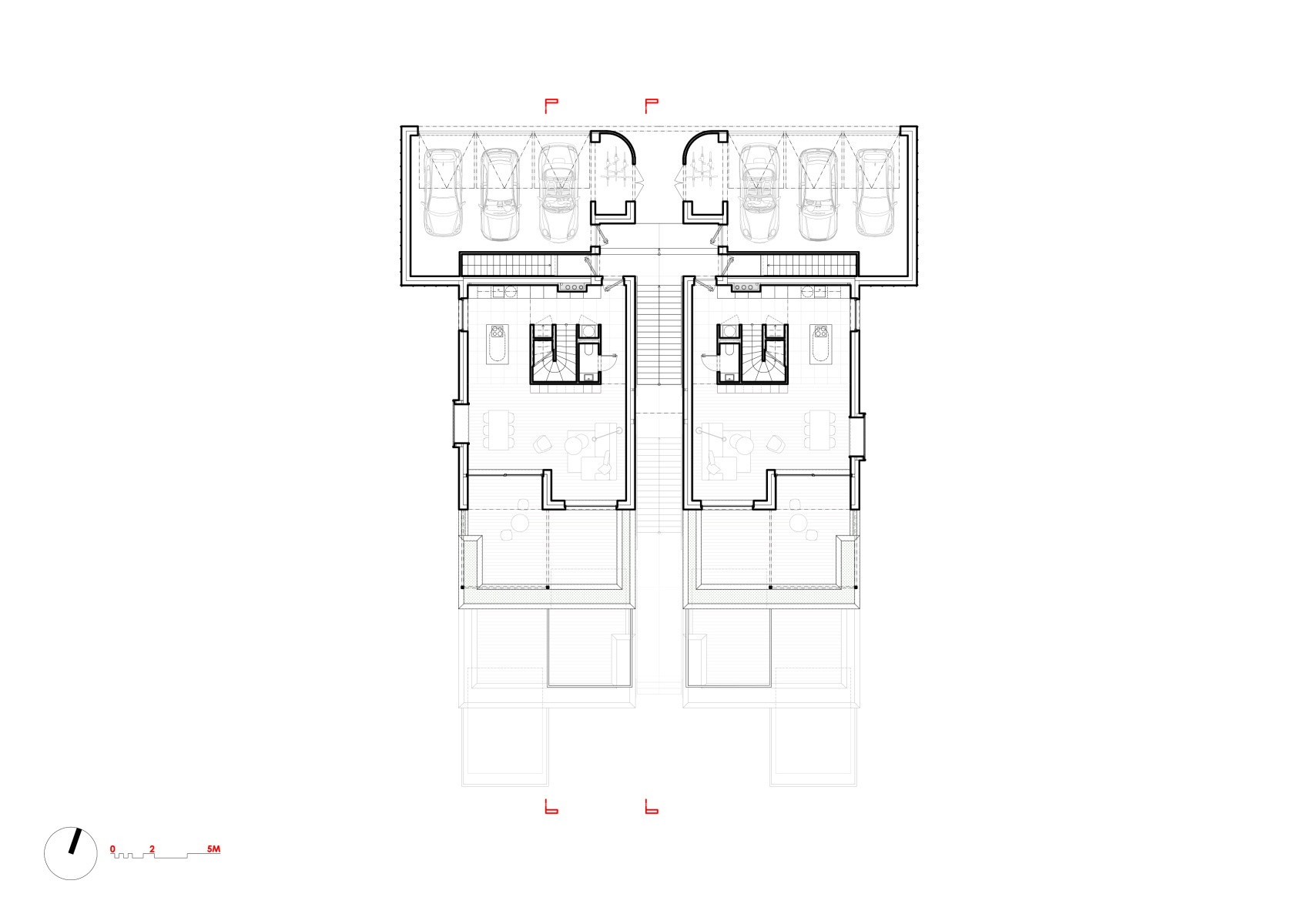
Půdorys vstupního patra. Zdroj: STUDIO MARTIN CENEK ARCHITECTURE
Sdílet na Facebooku Sdílet na Pinterestu
50 / 53
REKLAMA