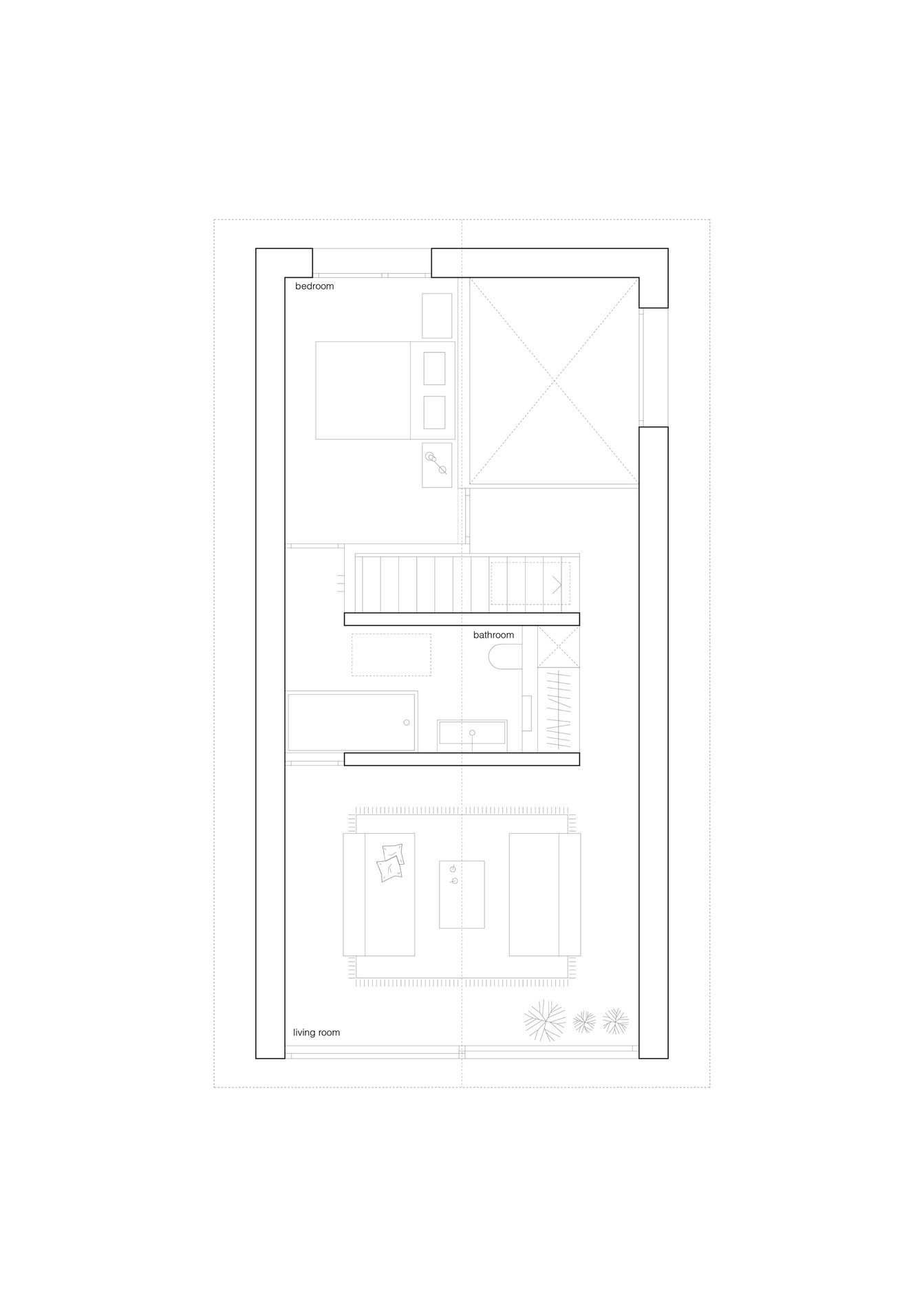
Ke starému přidali nové: Dům stojí na prahu mezi minulostí a přítomností, a tím je nadčasový
Toulavý dům stojí na prahu mezi minulostí a přítomností, a tím je nadčasový. Zdroj: Lionell Ballmer
Sdílet na Facebooku Sdílet na Pinterestu
26 / 29
REKLAMA