Dům s kavárnou v historickém centru města. Zahřeje na těle i na duši
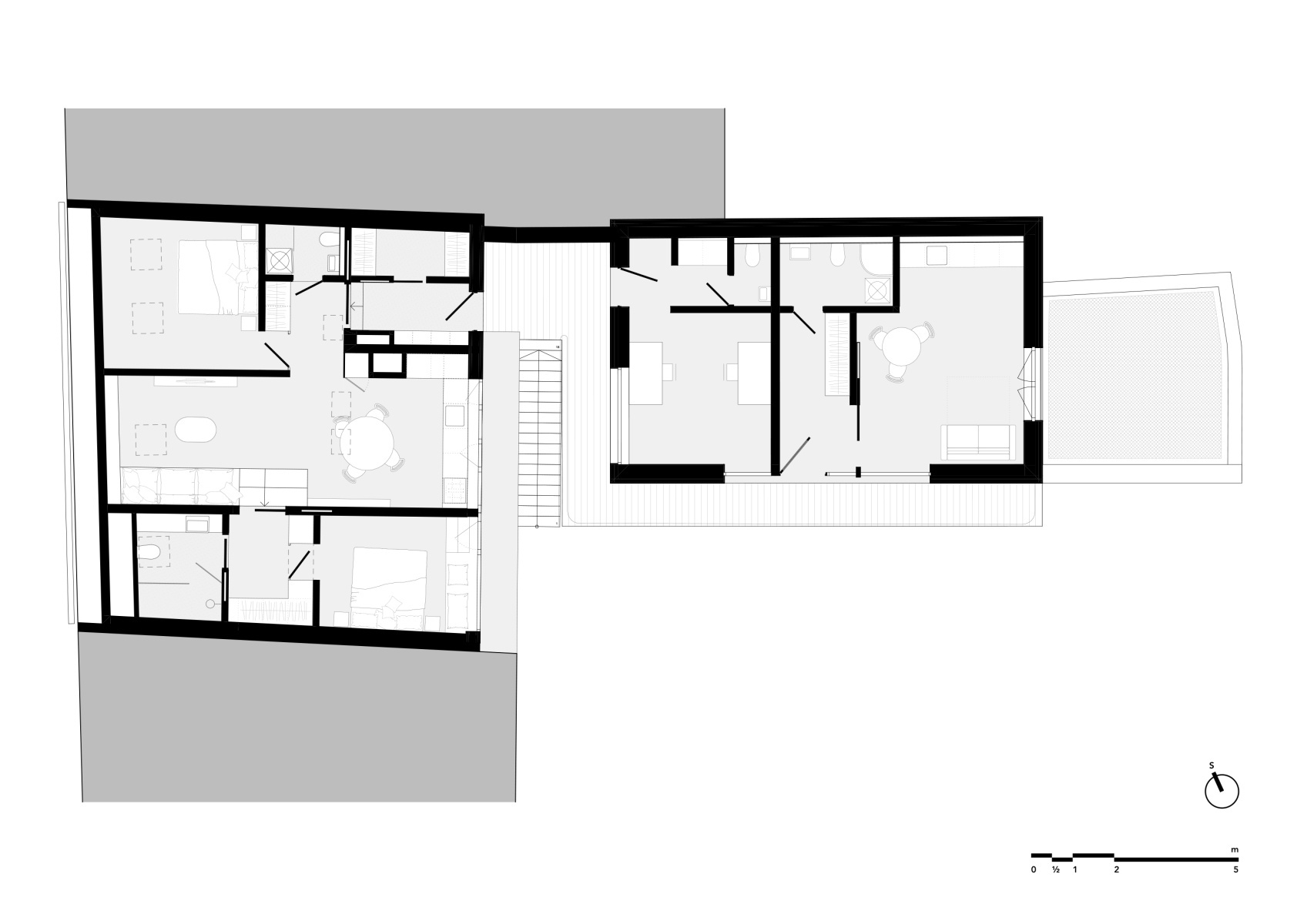
Půdorys 2.NP. Zdroj: STUDIO MATĚJ ŠEBEK ARCHITEKTI
Sdílet na Facebooku Sdílet na Pinterestu
41 / 43
REKLAMA