Schodiště se zlatým třpytem v Mexické restauraci
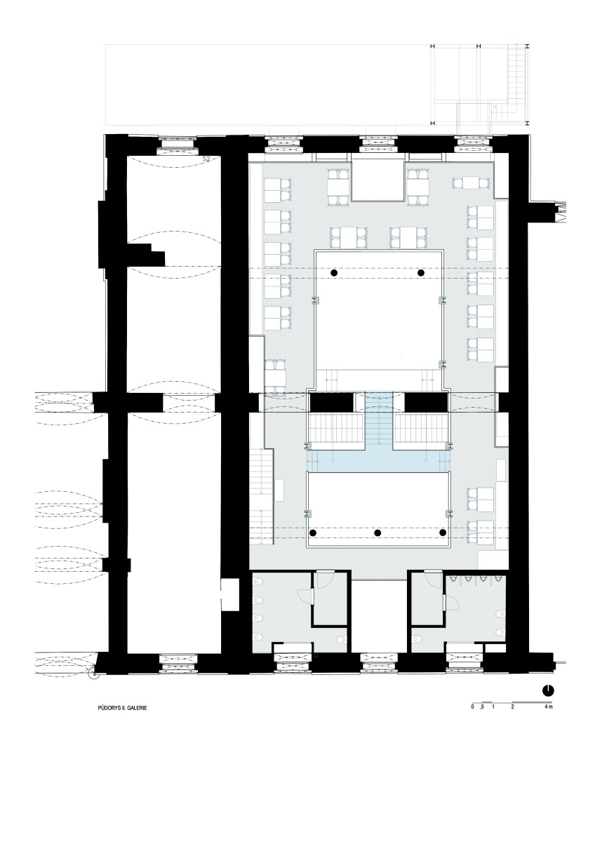
Půdorys druhé galerie. Zdroj: STUDIO 20–20–ARCHITEKTI
Sdílet na Facebooku Sdílet na Pinterestu
50 / 51
REKLAMA