Platforma PULSE ohlašuje další ročník festivalu, vrací se do Ostravy a chce ukázat budoucnost architektury a designu
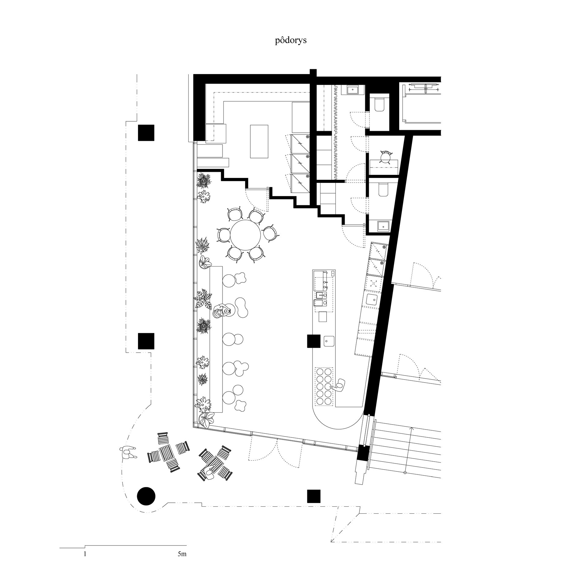
Vítězové PULSE AWARDS – Kategorie Interiérový design, Public Mimoza gelato. Foto: Pulse archi a agentura Hero & Outlaw
Sdílet na Facebooku Sdílet na Pinterestu
55 / 85
REKLAMA