Interiér inspirovaný letectvím a oceánem. Dominantou je svítící strop
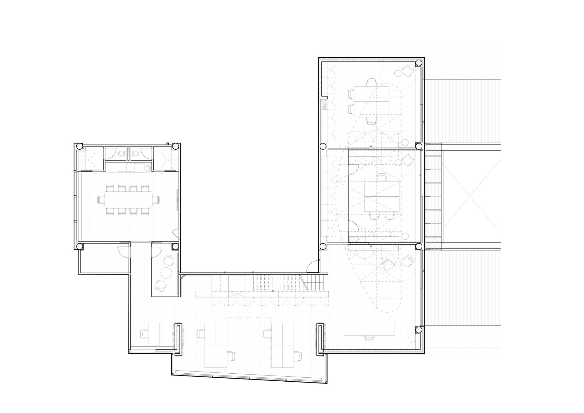
Půdorys přízemí. Zdroj: CISARSTUDIO
Sdílet na Facebooku Sdílet na Pinterestu
23 / 27
REKLAMA