Dřevěná chata mezi skálou a řekou
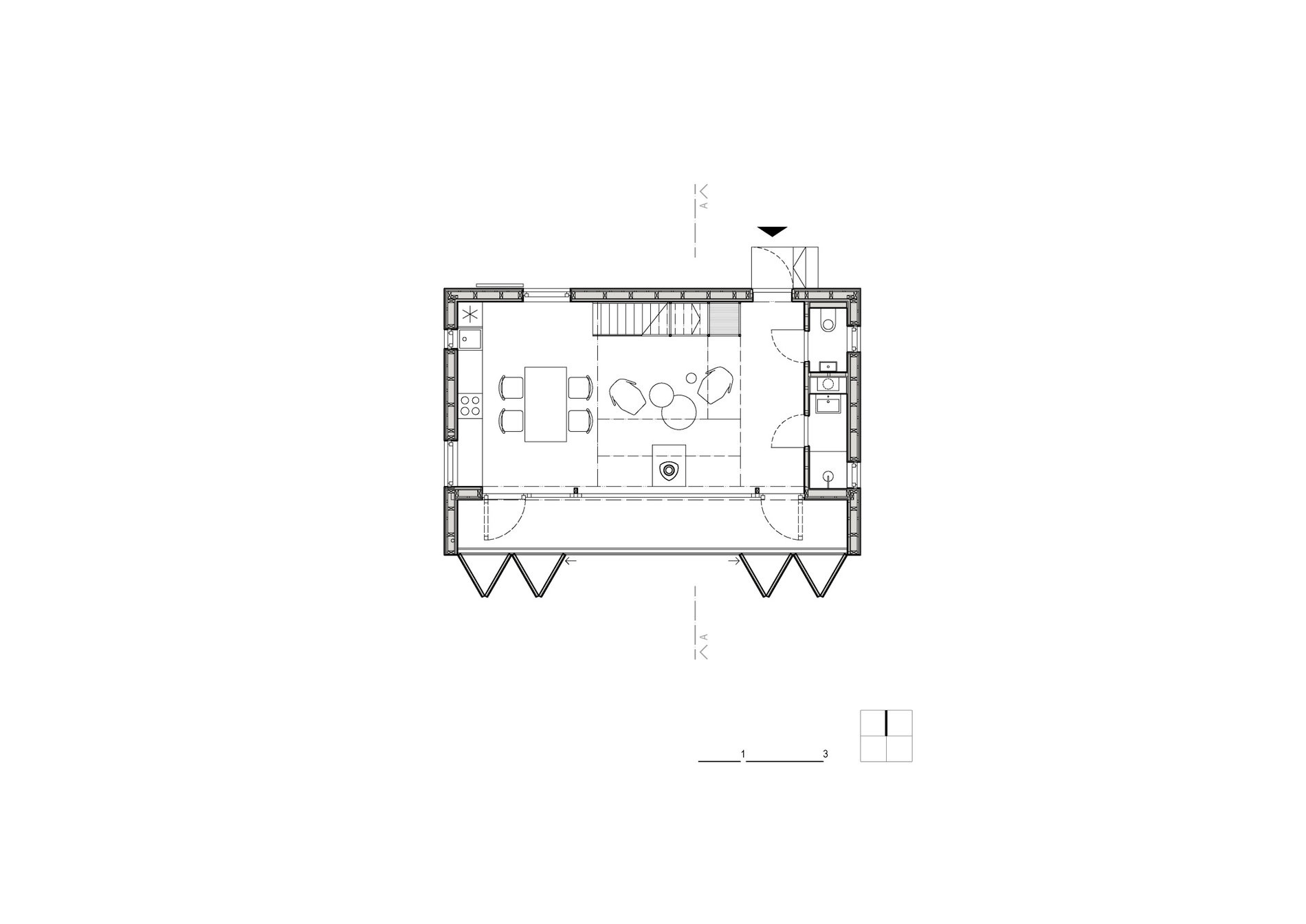
Půdorys 1.NP. Zdroj: STUDIO MIMOSA ARCHITEKTI
REKLAMA