Přehrát audio verzi
Prudký svah jako výzva: Vila Sidonius vznikla tam, kde by jiní nestavěli
00:00
00:00
1x
- 0.25x
- 0.5x
- 0.75x
- 1x
- 1.25x
- 1.5x
- 2x

Vilová čtvrť v malebném městě u Berounky je přehlídkou jedinečných rodinných domů. Vznikala již na začátku 20. století, proto zde můžeme najít secesní i prvorepublikové vily. Po roce 1989 se místo opět stalo vyhledávanou adresou pro výstavbu reprezentativních rezidenčních staveb, a to i v této čtvrti. Lokalita si tak vytvořila silný charakter, který nedefinuje přímo architektonický styl, ale velkorysost a měřítko staveb. Ty se na svých prudkých parcelách vyjímají nad zařezanou cestou do svahu, lemovanou opěrnými zdmi zahrad. Stejná měla být i vila Sidonius.
Prudký svah jako výzva: Vila Sidonius vznikla tam, kde by jiní nestavěli. Foto: Filip Šlapal
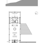
Prudký pozemek vily je na severní stinné straně terénní vlny. Patří mezi nejprudší a nejvýše položené. To mu přináší řadu výhod, stejně tak i nevýhod či výzev do zadání. Nejkrásnější výhledy na údolí Berounky lemované kopci Českého krasu a siluetou hlavního města Prahy v pozadí jsou bezesporu největším klenotem. Proto bylo snahou poskytnout tento výhled ve všech obytných místnostech z toho nejlepšího úhlu. Severní svah trpí nedostatkem slunce, které většinu dne dopadá jen na nejvyšší část pozemku. Ta byla ale po strmém svahu velmi těžko přístupná. Otázkou tedy bylo, jak dům postavit co nejvýše a současně jej pohodlně zpřístupnit.
Koncept, který eliminuje nevýhody, využívá výzev a maximalizuje hodnoty pozemku, vyšel z principu visutých domů. Zvítězila forma mostní konstrukce na pilířích. Dům tak připomíná ocelovou lávku, jež na příkrém svahu spočívá v pootočené pozici za nejlepšími severními výhledy a jižním sluncem.
Dům je esencí jedinečného tvůrčího procesu, na kterém se podílel kromě architektů dlouhý tým specialistů z projekce i výroby jednotlivých dílů stavby. Výjimečné postavení zaujímá i majitel domu, který svým zapojením do celého procesu přípravy i výstavby významně ovlivnil celkový výsledek.
Spoluautoři
- prof. Ing. arch. Ján Stempel
- doc. Ing. arch. Jan Jakub Tesař, Ph.D.
Kancelář
- Stempel Tesař architekti
Dokončení realizace
- 2023































Sdílet / hodnotit tento článek